- 神戸市灘区の不動産 ラフ不動産販売株式会社 TOP
- イトーピア香櫨園酒蔵通り|西宮市建石町(阪神本線香櫨園駅)の中古マンション物件詳細
イトーピア香櫨園酒蔵通り|西宮市建石町(阪神本線香櫨園駅)の中古マンション物件詳細
- 登録日:2026年03月24日
- 次回更新日:2026年04月07日
![]() |
![]() |
||||
| その他の写真 | ![]() |
![]() |
![]() |
![]() |
※画像をクリックすると拡大表示します。 |
|---|---|---|---|---|---|
![]() |
![]() |
![]() |
![]() |
||
![]() |
![]() |
![]() |
![]() |
||
![]() |
|||||
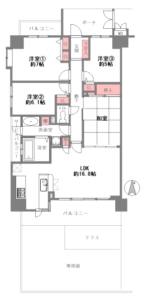
| 物件種別 | 中古マンション |
|
|
|---|---|---|---|
| 物件名称 | イトーピア香櫨園酒蔵通り | ||
| 物件番号 | 200044011389 | ||
| 交通 | ・阪神本線香櫨園より徒歩9分 ・阪神本線西宮より徒歩12分 |
||
| 所在地 | 西宮市建石町4-23 | ||
| 管理費 | 13,210円/月 | 修繕積立金 | 17,610円/月 |
|---|---|---|---|
| 建物構造 建物階数/所在階 |
鉄筋コンクリート造 11階建て/1階 |
完成年月 | 2001年10月 |
| 部屋番号 | 101号室 | バルコニー面積 | 16.53m2 |
| 総戸数 | 52戸 | 駐車場 | 13,000円/月 |
| 土地権利 | 所有権 | 部屋の向き | 南向き |
| 管理形態 | 日勤 | 現況 | 空家 |
| 取引態様 | 一般媒介 | 引渡時期 | 即時 |
| 小学校区 | 浜脇小学校(約290m) | 中学校区 | 浜脇中学校(約250m) |
| 特記事項 | |||
| コメント | 2025年12月リフォーム完了 | ||
| 条件 |
![]() ![]() | 設備 |
![]() ![]() ![]() ![]() ![]() ![]() ![]() ![]() ![]() ![]() ![]() ![]() ![]() ![]() ![]() ![]() |
| その他 |
●地目:- ●都市計画:- ●建蔽率:- ●容積率:- ●国土法の届出:不要 ●用途地域:第一種住居地域 ●セットバック面積:- ●ガス:都市 ●下水:下水 ●コンロ:ガス ●私道面積:- ●借地期間:- ●借地料:- |
||
ローンシミュレーション
- ※計算結果は概算です。目安としてご覧ください。
- ※実際の借り入れなどの際は当該金融機関等の試算に従ってください。
| 頭金 | 万円 |
借入金額 |
万円 |
|
|---|---|---|---|---|
| 返済期間 | 年 |
金利 | % |
|
| 毎月の返済額 | 円/月 | |||
|
|













































